鸡米饭和鸡汤饭是不错的餐饮创业类别,在众多的品牌里具备鲜明代表的有黄焖鸡与王春春,这两种餐饮招牌也是做得较为成功的门店。下面帝睿装饰为大家分享一组鸡汤饭的门店装修设计案例,店铺面积只有70平,可是很多装饰装修的地方却值得大家学习。

鸡汤饭门店雷火(中国)设计效果图
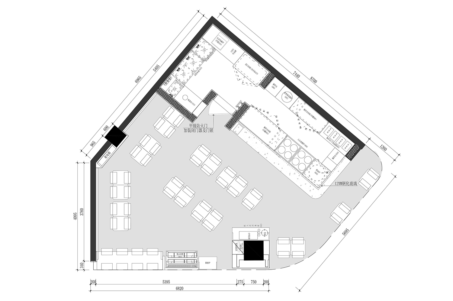
左右入口两侧餐椅的分散布置设计,使得该门店的就餐位巧妙且极具个性化特点。这也是90%以上小型餐饮门店装修的共同特征。所以,餐饮门店装修中关于装修效果最常见的问题,首选是如何去解决空间布局,尤其是面积越小,就越是应该重视该方面的问题。
作为门店餐饮的一个空间整体,总体布局是通过使用空间各单元共同创造,设计上必须符合顾客和方便用餐,这是基本要求。与此同时,艺术上的美观性欣赏价值也要追求。

鸡汤饭门店平面设计图
鸡汤饭内部的装修设计是由面积决定,即便是平面场地大小只有70平,太宽或者是太拥挤都是好事,故而顾客来电的数量决定了餐位个数,这些都是影响餐饮店设计的一个重要因素。
针对餐饮装修,我们给的科学建议是在设计上的元素运用要适度及满足一定规律,方才能求取意想不到的装修效果,这也是此次鸡汤饭门店装修有关装修的核心思路。

鸡汤饭门店餐饮装修设计效果图
鸡汤饭在餐饮行业里之所以能够迅速崛起发展至火爆程度,主要原因还是因为味道出众,可以说是老少皆宜。除此之外,鸡汤饭门店的加盟门槛在众多餐饮类里较低,即使没有丰富的经营经验也可以轻松实现盈利。但是,相比之下,我们认为做好一个餐饮,首选是需要把门店装修好看。
以上内容是70平鸡汤饭门店装修及效果图设计案例分享的全部介绍,工程预算造价约为123000元。如果大家有类似餐饮店铺装修设计需求,可以随时联系我们。
餐厅装修实景案例欣赏:“小”技巧,大聪明!
城市里快节奏的理想生活方式之一是经常出入各种餐...[2023-10-28]
700平咖啡厅雷火(中国),暖洋洋的设计,本人太喜欢了!
此案例为700平咖啡厅装修,是一个有温度的项目...[2023-08-09]
成都酒吧装修有哪些小窍门?
当代的年轻人都喜欢下班之后去酒吧放松一下,缓解...[2019-06-28]
非常时尚的小型酸奶冰淇淋门店装修效果图
饮品店和特色小吃店由于其面向的客户比较大众的原...[2016-02-27]
服务区域:锦江区、青羊区、金牛区、武侯区、成华区、龙泉驿区、青白江区、新都区、温江区、双流区、郫都区、新津区、高新区、天府新区
公司地址:成都市成华区羊子山路68号东立国际广场 电话:028-8338 5863
Copyright © 2014-2025 成都帝睿工装公司 All Rights Reserved ICP备案:蜀ICP备14023125号-1 网站地图